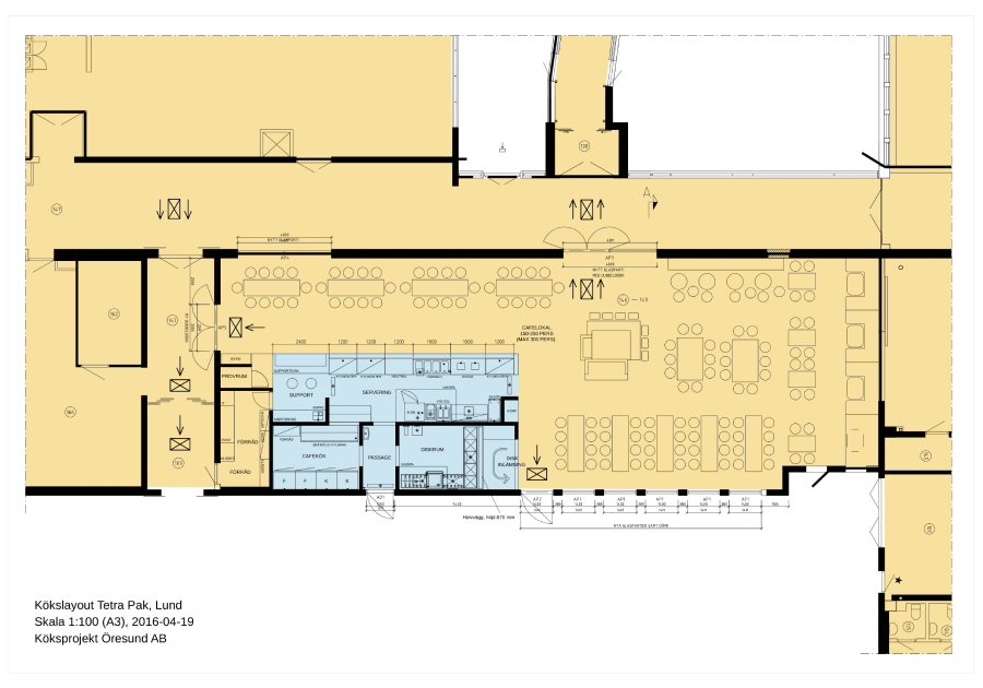
Tillsammans med Fojab Arkitekter har vi ritat ett bistrokök med kapacitet för ca 300 gäster. Detta kök ska vara ett komplement till den stora restaurangen, som redan finns i byggnaden.
Tillsammans med Fojab Arkitekter har vi ritat ett bistrokök med kapacitet för ca 300 gäster. Detta kök ska vara ett komplement till den stora restaurangen, som redan finns i byggnaden.