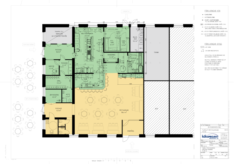
På uppdrag av stjärnkocken Daniel Müllern har vi tagit fram handlingar för hans nya satsning i Ystad. Det kommer bli en folklig kvarterskrog med smaker från hela världen och från den inbjudande baren kommer gästerna ha en god insyn in i köket.
Årliga arkiv: 2021
Framtida tillbyggnad omfattar fyra klassrum och ytor för fritidshemmets verksamhet. Skolrestaurangen måste utökas för att kunna ta emot totalt 450 elever. Samtidigt vill man även ha en mer inbjudande servering med fler stationer och en funktionell diskinlämning.
Vi har tagit fram en planlösning för det befintliga köket på ett vårdboende. Kostchef och kökspersonalen önskade ett tydligare flöde för inkommande varor och leverans av mat. Man ville också ha en bättre kontakt med gästerna i restaurangen.
Space är framtidens kontor i Lund med ESS och Max IV lab som närmaste grannar. I atrium finns öppna ytor där husets olika hyresgäster kan umgås och på entréplan kommer det finnas både café och restaurang, som vi har ritat i samarbete med Veidekke.
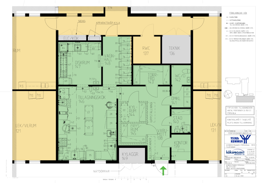
Fastighetsavdelningen har beställt en köksprojektering för det nya tillagningsköket, dimensionerat för 150 portioner. Planlösning och koncept är framtagna i samarbete med kostenheten. Köket ska ligga i en tillbyggnad till den redan befintliga förskolan.
En av Malmös nya krogar ”BISe” öppnar till våren i ett centralt och trevligt läge. Bakom satsningen står Arvid Falk som tidigare arbetat på Talldungens gårdshotell och Boulebar, och Ludvig Fredriksson som varit verksam på Saltimporten Canteen.
På ett av de bästa lägena i stadsdelen Hyllie öppnar Edens Bistro senare i höst. Det kommer vara en restaurang med kvalitativa rätter på menyn. I köket finns en öppning mot restaurangen, vilket skapar en trevlig kontakt med gästerna.
Projektering avser renovering och uppdatering av ett befintligt storkök på Olympiaskolan i Helsingborg. Tillagningsköket får en betydligt mer funktionell planlösning med enklare flöden och bättre överblick. Arbetet görs i samarbete med WSP.
Vi har tidigare tagit fram en kökslayout och nu pågår en projektering för fullt med övriga inblandade i projektet. Från den charmiga restaurangen kommer gästerna att ha en god inblick i bistroköket. En given succé där det kommer erbjudas en spännande meny.
Samhällsbyggnadsförvaltningen har beställt projektering för det befintliga köket på en skola i Simrishamn. Verksamheten önskade enklare och tydligare flöden för förråd, kök samt diskrum. Vi ska också skissa på en förändring för serveringen i matsal.
- 1
- 2










