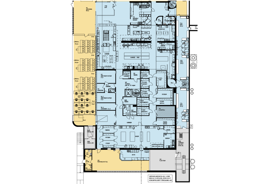
Tillsammans med Horisont Arkitekter har vi tagit fram en planlösning för ombyggnation på Vipeholmskolan. Lundafastigheter har även beställt köksprojektering för Brunnshögskolan och Fäladskolan.
Tillsammans med Horisont Arkitekter har vi tagit fram en planlösning för ombyggnation på Vipeholmskolan. Lundafastigheter har även beställt köksprojektering för Brunnshögskolan och Fäladskolan.