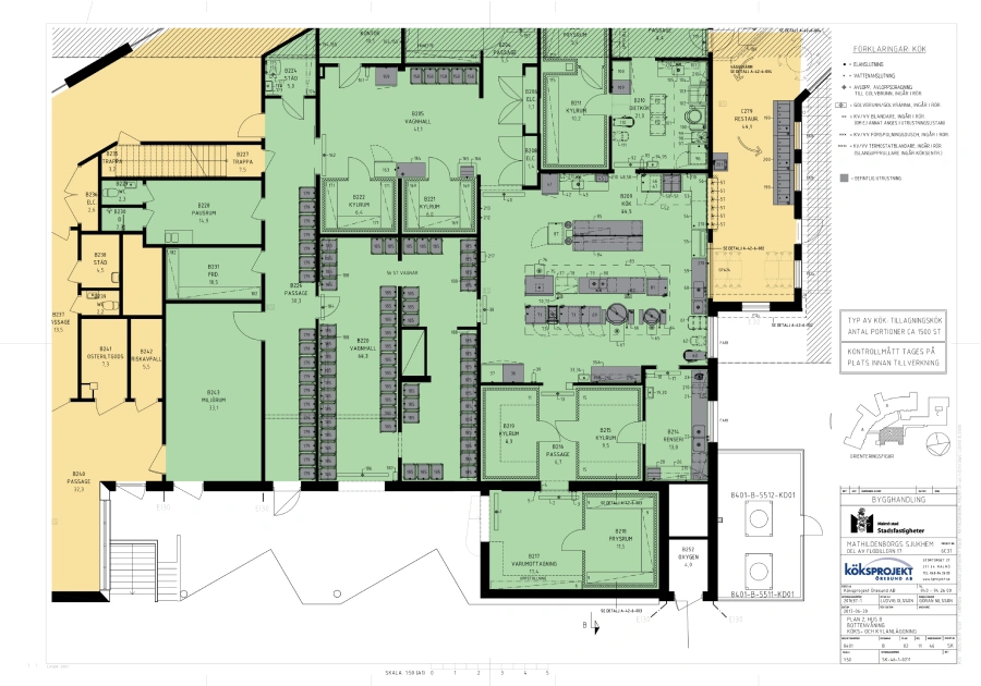
Nu är detaljprojekteringen av Mathildenborg färdig som bygghandling. Restaurangen är en naturlig mötesplats i stadsdelen och köket levererar till många närliggande enheter. Maten lagas från grunden med fokus på att den är hemlagad och närproducerad.
Nu är detaljprojekteringen av Mathildenborg färdig som bygghandling. Restaurangen är en naturlig mötesplats i stadsdelen och köket levererar till många närliggande enheter. Maten lagas från grunden med fokus på att den är hemlagad och närproducerad.