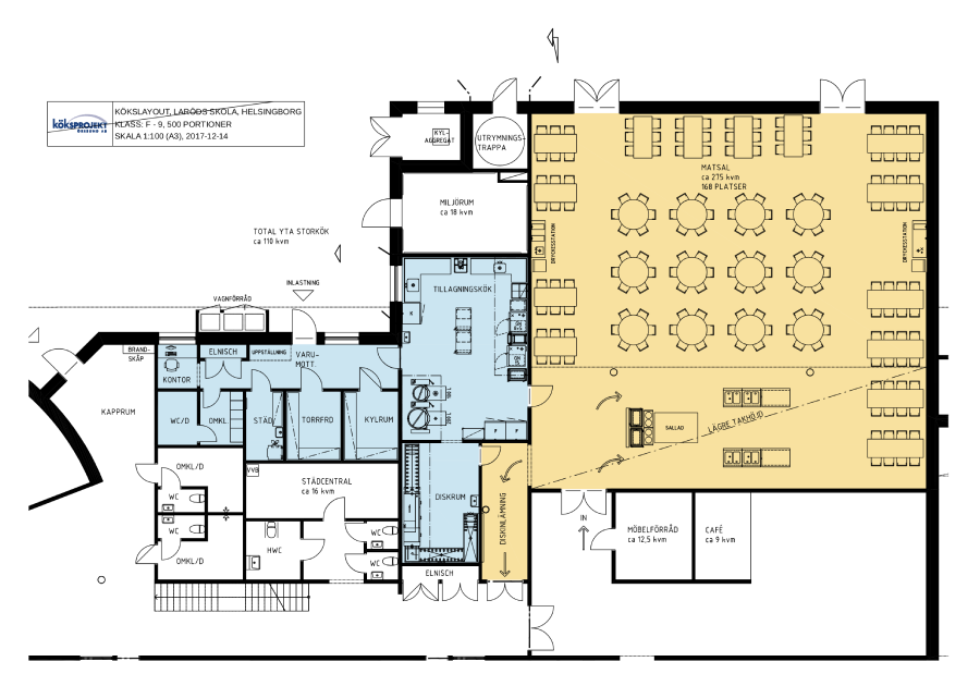
Objekten är Laröds skola och Lussebäckens äldreboende. Med dimensionerad kapacitet på ca 500 respektive 150 portioner. Planlösningar har vi tagit fram tillsammans med House arkitekter och Arkitektlaget.
Objekten är Laröds skola och Lussebäckens äldreboende. Med dimensionerad kapacitet på ca 500 respektive 150 portioner. Planlösningar har vi tagit fram tillsammans med House arkitekter och Arkitektlaget.