During the autumn, Aiko Sushi opened the doors to its new restaurant at Hyllie in Malmö. We have produced construction documents for an open restaurant kitchen with good contact with the guests. They offer us a tour, join us and let yourself be inspired!
Yearly Archives: 2024
Another project with property manager Hemsö. This time, it is the remodeling of an existing kitchen that they want to upgrade to a full-fledged preparation kitchen with the right flows for kitchen staff, educators and preschool children.
We have received an order from Trianon to produce an alternative kitchen layout for a new restaurant at the Entré shopping center in Malmö. The priority for our work was to produce a floor plan that was both functional and technically possible for the design group.
We already feel that we have a contender for the most charming project of the year. The food managers’ wishes for the Municipal Hall café were to change the flow of serving and handling dishes. They also wanted a general update to the interior design.
The property management in Helsingborg has decided that all surfaces in the existing kitchen must be replaced. At the same time, the department of service wanted several revisions to improve the floor plan and the working environment for the staff, this is incorporated into our construction documents.
Later this autumn, employees at Alfa Laval will be able to enjoy lunch in the newly renovated restaurant. The construction is in full swing and it is getting closer to the final inspection. We have designed and produced construction documents together with Bravida.
After more than 12 years with an office on Stortorget in Malmö, we have now moved the business to The Point Hyllie. Specifically, to a room on the 5th floor. We look forward to meeting here in the future. Our visiting address is Hyllie Stationstorg 31.
We received maximum points in the valuation for submitted kitchen layout and won the procurement in Ystad municipality. Which we are proud of and our hope is that other clients follow this principle to get fairer procurements in the future.
Another project with the Church of Sweden as the client. Helgeand parish is to be renovated and in connection with this, we have designed a work-friendly floor plan for the preparation kitchen, thanks largely to clear requirements and wishes from the kitchen staff.
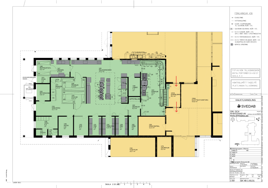
Svedab has ordered a complete calculation document with a floor plan and equipment list. Using this as a basis, we will produce a calculation for the new floor plan with larger fridge and freezer rooms and some revisions to the preparation kitchen.
- 1
- 2










