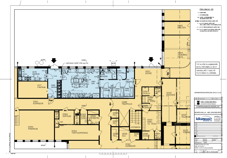
The property management has extended our framework agreement for another year, which we are happy and proud of. One project we are working on is Borgvallas nursing home. We make sketches together with architects and the catering manager.
Yearly Archives: 2015
In collaboration with Sweco Architects, we have developed a floor plan for a restaurant kitchen at ESS Campus in Lund. The kitchen will be able to serve about 400 lunch guests. It will also be open in the evenings and for conferences and meetings.
We have designed a preparation kitchen at Kronodal, the object is a senior center and the kitchen is dimensioned for about 150 portions. We have developed the floor plan in near collaboration with the Arkitektgruppen and our client is Skanska.
In close collaboration with Mono Arkitekter and commissioned by the real estate office, we have designed a commercial kitchen in Skegrie preschool. At the same time, we have made changes for scullary and the serving on Skegrie school.
We have received an order for a commercial kitchen design for a preparation kitchen from the property management. First, a preschool is dimensioned for about 200 portions, then in the spring there will be a design for a primary school/preschool.
The property management has commissioned three designs for new preparation kitchens. The projects are two school kitchens and a kitchen for a nursing home. Sketch proposals and floor plans are being developed in close collaboration with the deparment of service and the architectural firms.
In collaboration with Magasin A Arkitekter, we have designed a new cafe kitchen at Assa Abloy in Landskrona. The number of lunch portions is 300. The cozy restaurant will be a central gathering place for all employees at the company.
We are planning two preparation kitchens in the municipality, the objects will be sized and equipped for 1500 and 2000 portions. Sketch proposals and floor plans are being developed in close collaboration with the department of service and two different architectural firms.
On the same day, inspections were carried out on two different preparation kitchens in the municipality. Both objects were approved by the inspection group, which meant that the client, catering manager, kitchen supplier and inspector were very satisfied.
The property management has commissioned kitchen design for two preschools in the municipality. The objects are preparation kitchens that are to be dimensioned for four and eight departments. Sketch proposals and drawings have been developed in close collaboration with New Line Architekter.
- 1
- 2










