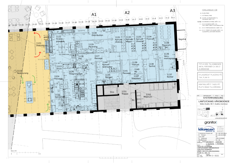
Now we have finished the system document for Lantlyckan, it’s a nursing home with a preparation kitchen for 300 portions. The design work has been done in a very rewarding collaboration with the the department for service, our client for this kitchen project is Granitor in Helsingborg.