The Property Management in Malmö has ordered kitchen planning for Granbacken preschool and Spårvagnen preschool. The projects are preparation kitchens with a capacity of about 200 and 100 meals, respectively.
We have produced a draft of the kitchen layout for the preparation kitchen at Drottningshögs school. We have done this in close collaboration with the department for service in Helsingborg and Arkitektlaget AB. The number of portions is about 500.
In close collaboration with Arkitektgruppen AB and the Property Management in Malmö, we have produced a design for the new kitchen at Södertorpsgården. The kitchen is located in the annex and dimensioned to accommodate the preparation of about 300 portions.
As commissioned by Story Hotel and in cooperation with Skanska AB, we are developing a detailed plan for a sky bar on the 14th floor. The idea is for Studio to become the new meeting place in the Western Harbour. We have previously designed a restaurant kitchen, café and bar on the ground floor.
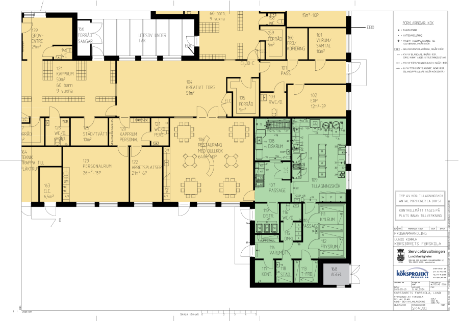
A programme document is almost complete for Vildandens preschool. Detailed planning will commence in the near future, and the same applies for Körsbärets preschool. The number of portions prepared is about 150 and 300 respectively.
In collaboration with Chroma Arkitekter AB and on contract from Skanska AB, we have designed a preparation kitchen at Kirsebergs preschool. The kitchen is dimensioned for 7 departments. Detailed planning will commence in the autumn.
We are designing a restaurant kitchen at the student union GA Kårhus. The planning and layout has been developed in close cooperation with the student union and House Arkitekter AB. The contract is through a framework agreement with the Property Management.
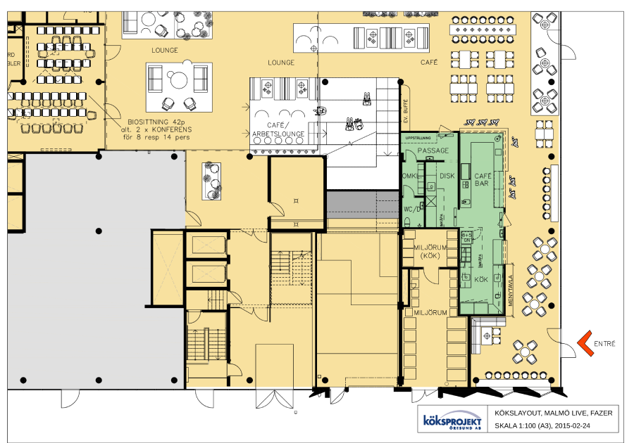
Commissioned by Fazer Food Services AB, we have developed a concept design for a café kitchen at Malmö Live. The café is dimensioned for about 100 seated guests.
We are currently sketching designs for 3 preparation kitchens in Malmö. The objects are Cementen school / preschool and Högaholm school. We are developing the design and layout in cooperation with the preschool administration and the department for service in Malmö.
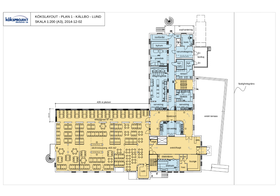
We are sketching a design for a preparation kitchen and food court at Källbo “Spyken” in cooperation with the department for service and Wigot Konsult AB. The client is the Property Management in Lund.










